Transport Planning Appeal Success
20th April 2026Three Appeal Successes for C&A’s Transport Planning C&A’s Transport Planning team is celebrating a hat-trick…
C & A are pleased to announce the successful approval of two new projects.
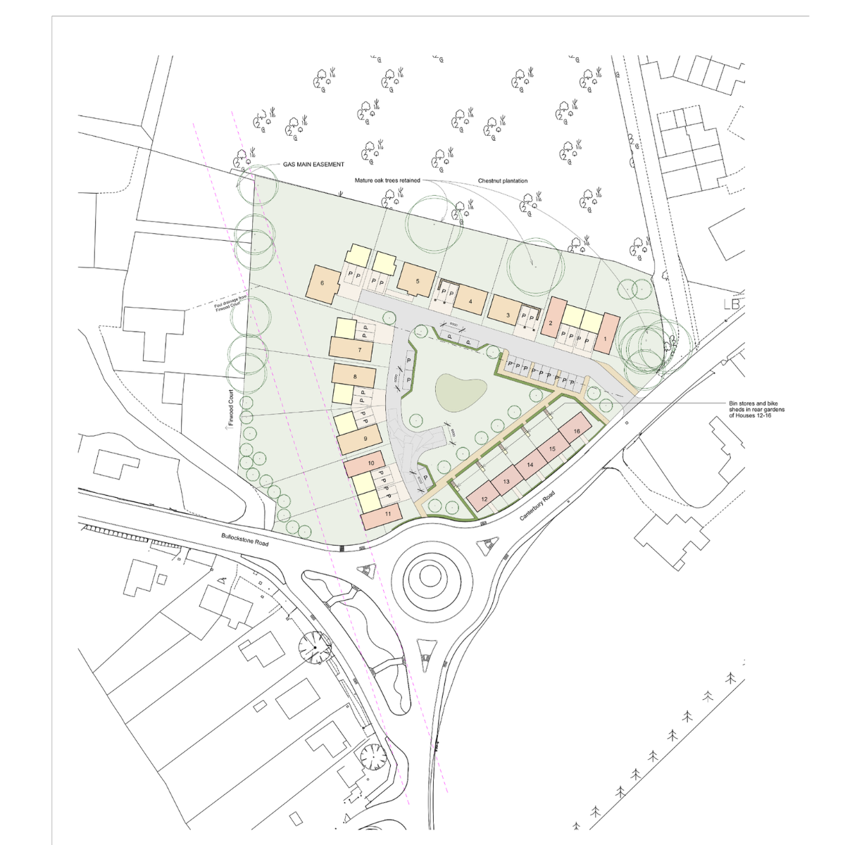
We were appointed to undertake a Flood Risk Assessment, alongside a sustainable drainage (SuDS) and foul drainage strategy, for a proposed development of 16 residential properties at Firwood Court in Herne Bay.
The assessment carefully considered flood risk and surface water drainage constraints. Our findings demonstrated that neither flooding nor drainage issues would pose a barrier to development. As a result of these positive outcomes, there was no technical reason why the site should not continue through the planning process.
We also provided transport planning support for a proposed change of use from a commercial warehouse to an 8 court padel club, including associated parking, at Larkfield Mill, Bellingham Way in Aylesford.
The site benefits from strong accessibility via sustainable transport modes, including walking, cycling, and public transport. Our transport assessment concluded that the development would result in only a minimal increase in traffic on the surrounding highway network.
Parking accumulation analysis confirmed that the proposed parking provision is appropriate for the anticipated demand.
These projects highlight our continued commitment to delivering robust, evidence-based assessments that support sustainable and well-planned development.
Three Appeal Successes for C&A’s Transport Planning C&A’s Transport Planning team is celebrating a hat-trick…
C&A Supports Expansion of Syntech Biofuel Facility Charles and Associates is pleased to announce that…
A Great Result from the Team! Great feedback to receive from Surrey County Council on…